Концепція
Локація
Котеджі
Інвестиції
Сервіс
Хід будівництва
Контакти
EN
UA
/
Концепція
Інфраструктура
Котеджі
Інвестиції
Сервіс
Відеотур
Хід будівництва
Контакти
Ua
En
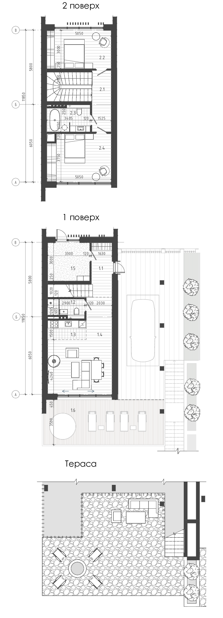
площа котеджу
114 кв.м
площа ділянки
451 кв.м
Галерея
площа котеджу
114 кв.м
площа ділянки
451 кв.м
Галерея
Планування
Планування
Візуалізації
Завантажити презентацію
[{"lid":"1598726724208","ls":"10","loff":"","li_type":"nm","li_name":"name","li_ph":"\u0412\u0430\u0448\u0435 \u0456\u043c\u2019\u044f","li_req":"y","li_nm":"name"},{"lid":"1598726724209","ls":"20","loff":"","li_type":"ph","li_title":"\u0412\u0430\u0448 \u0442\u0435\u043b\u0435\u0444\u043e\u043d","li_ph":"+38 --- --- -- --","li_req":"y","li_mask":"+38 999 999 99 99","li_nm":"Phone"}]
Дізнатися вартість
[{"lid":"1666447926380","ls":"10","loff":"","li_type":"ph","li_ph":"Name","li_req":"y","li_masktype":"a","li_maskcountry":"UA","li_nm":"Phone"},{"lid":"1666447926381","ls":"20","loff":"","li_type":"nm","li_name":"name","li_ph":"\u0412\u0430\u0448\u0435 \u0456\u043c\u2019\u044f","li_req":"y","li_nm":"name"}]
Проект
Котеджі
Про проект
Концепція
Відділ продажу
+38 (093) 093-92-92
Відеотур
Локація
Інвестиції
Управляюча компанія
Київ, вул. Жилянська, 59
Diplomat Hall
info@enhance-bukovel.com.ua
Девелопер проєкту
Хід будівництва
Viber
Telegram
WhatsApp